Wykonanie projektu aranżacji zagospodarowania przestrzeni wystawowej i edukacyjnej oraz dostosowania ekspozycji dla osób ze szczególnymi potrzebami
Przedmiotem zamówienia jest:
Zapytanie ofertowe
Welski Park Krajobrazowy na podstawie § 3 ust. 4 Regulaminu udzielania zamówień publicznych przez Welski Park Krajobrazowy, na potrzeby realizacji projektu pn.:
„Parki krajobrazowe – bramy Warmii i Mazur”
zaprasza do składania ofert realizacji zadania pn.:
„Projekt aranżacji zagospodarowania przestrzeni wystawowej i edukacyjnej oraz dostosowania ekspozycji dla osób ze szczególnymi potrzebami”.
- Opis przedmiotu zamówienia
Przedmiotem zamówienia jest opracowanie:
- projektu koncepcyjnego aranżacji plastycznej całości przestrzeni, będący całościowym opracowaniem wstępnych standardów wyposażenia meblowego i technologicznego wystawy, rozwiązań scenograficznych, wnętrzarskich w budynku oraz wytycznych instalacyjnych i technologicznych, które winny być podstawą dalszych prac projektowych;
- projektu wykonawczo – realizacyjny, na który składa się:
- projekt aranżacji wnętrz (projekt przestrzeni);
- projekt elementów aranżacji (rozrys elementów);
- projekty graficzne druków (wydruki wielkoformatowe, plansze, podpisy, wraz z określeniem nośników);
- kosztorysy, w tym przedmiar robót, wykaz sprzętów i urządzeń multimedialnych.
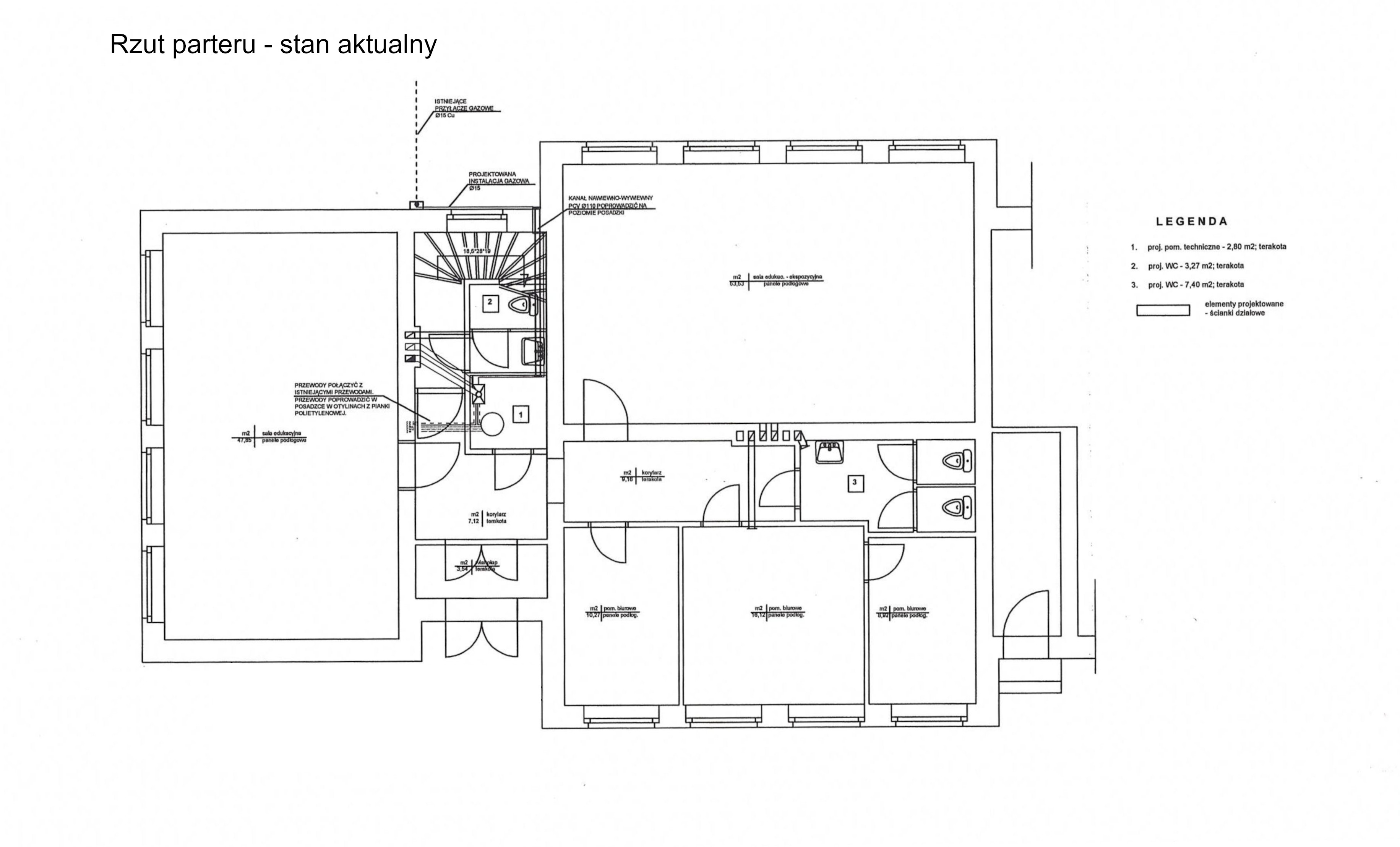
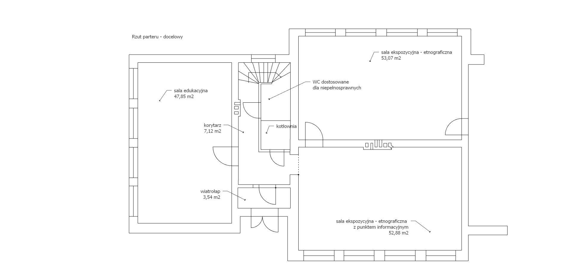
Pomieszczenia obejmujące przedmiot zamówienia:
-
- Część etnograficzno-przyrodnicza z punktem informacyjnym;
- Sala edukacyjna;
- Muzeum Przyrody z częścią archeologiczną;
- Część komunikacyjna - korytarze oraz klatka schodowa.
Szczegółowy opis przedmiotu zamówienia stanowi załącznik nr 1.
Załączniki
Treść ogłoszenia
SIWZ
- Załącznik nr 8_rzut poddasz
- Załącznik 1 opis przedmiotu zamówienia
- Załącznik nr 4_wzór umowy
- Załącznik nr 7_rzut parteru_projekt
- Załącznik nr 2_formularz ofertowy
- Załącznik nr 3_oświadczenie Wykonawcy
- Załącznik nr 6_rzut parteru_aktualny
- Załącznik nr 5_Zdjęcia stan aktualny