Wersja nieobowiązująca z dnia

Wykonanie projektu aranżacji zagospodarowania przestrzeni wystawowej i edukacyjnej oraz dostosowania ekspozycji dla osób ze szczególnymi potrzebami

Przedmiotem zamówienia jest:

Zapytanie ofertowe

 

Welski Park Krajobrazowy na podstawie § 3 ust. 4 Regulaminu udzielania zamówień publicznych przez Welski Park Krajobrazowy, na potrzeby realizacji projektu pn.:

„Parki krajobrazowe – bramy Warmii i Mazur”

 

zaprasza do składania ofert realizacji zadania pn.:

 

Projekt aranżacji zagospodarowania przestrzeni wystawowej i edukacyjnej oraz dostosowania ekspozycji dla osób ze szczególnymi potrzebami”. 

 

  1. Opis przedmiotu zamówienia

 

Przedmiotem zamówienia jest opracowanie:

  1. projektu koncepcyjnego aranżacji plastycznej całości przestrzeni, będący całościowym opracowaniem wstępnych standardów wyposażenia meblowego i technologicznego wystawy, rozwiązań scenograficznych, wnętrzarskich w budynku oraz wytycznych instalacyjnych i technologicznych, które winny być podstawą dalszych prac projektowych;
  2. projektu wykonawczo – realizacyjny, na który składa się:

- projekt aranżacji wnętrz (projekt przestrzeni);

- projekt elementów aranżacji (rozrys elementów);

- projekty graficzne druków (wydruki wielkoformatowe, plansze, podpisy, wraz z określeniem nośników);

- kosztorysy, w tym przedmiar robót, wykaz sprzętów i urządzeń multimedialnych.

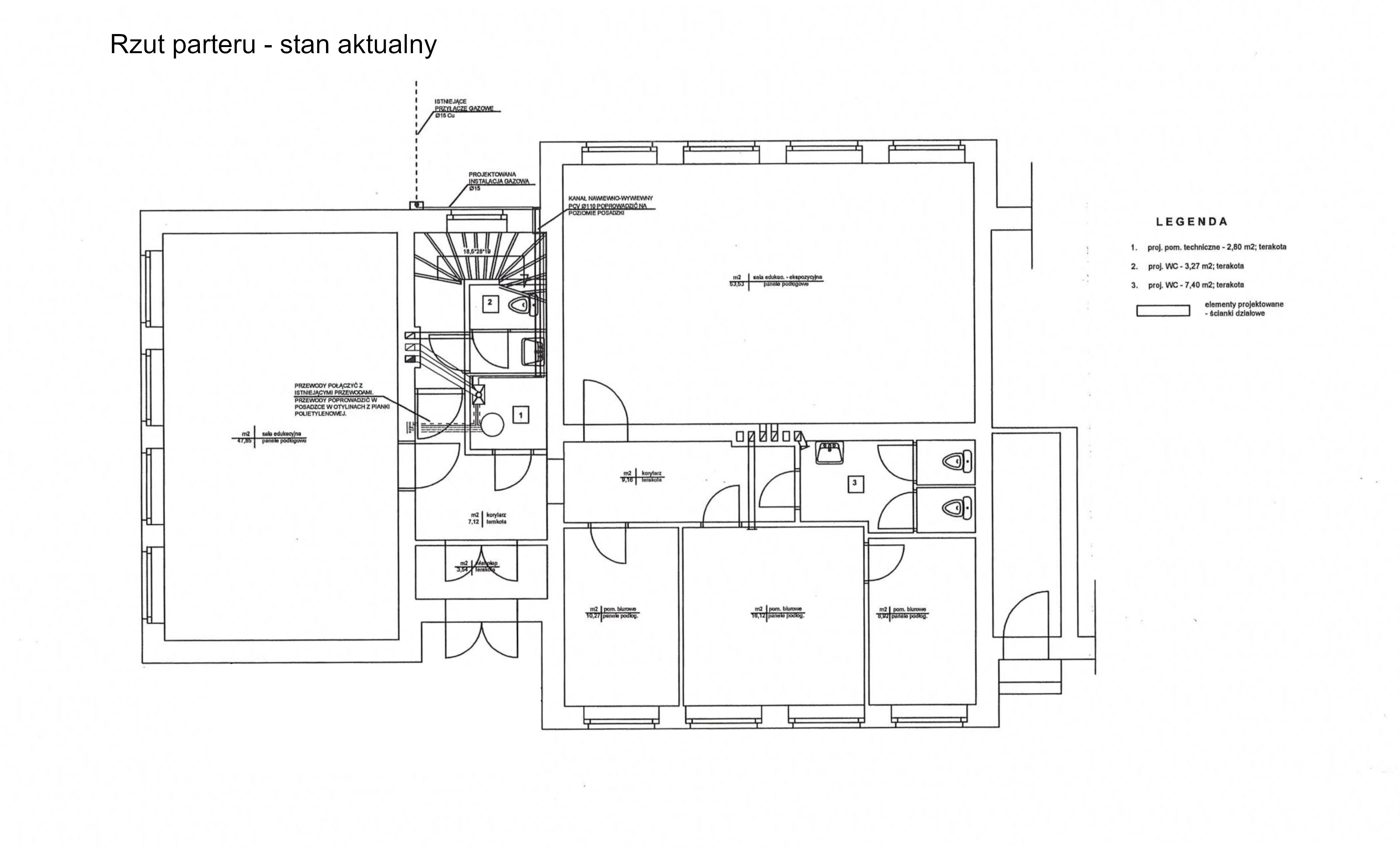
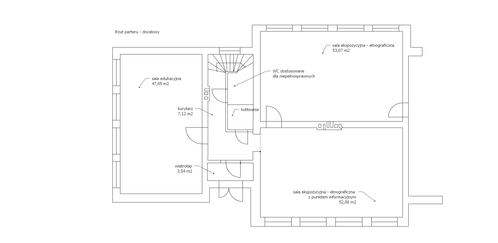
Pomieszczenia obejmujące przedmiot zamówienia:

    1. Część etnograficzno-przyrodnicza z punktem informacyjnym;
    2. Sala edukacyjna;
    3. Muzeum Przyrody z częścią archeologiczną;
    4. Część komunikacyjna - korytarze oraz klatka schodowa.

Szczegółowy opis przedmiotu zamówienia stanowi załącznik nr 1.

Załączniki

Treść ogłoszenia

SIWZ

Wersja nieobowiązująca

Strona może zawierać nieaktualną treść i załączniki. Możesz pozostać na tej stronie lub przejść na wersję z obowiązującą zawartością.