Wersja obowiązująca z dnia
Opracowanie koncepcji zagospodarowania przestrzeni wystawowej i edukacyjnej oraz dostosowania ekspozycji dla osób ze szcególnymi potrzebami
-
Numer zamówienia
WPK.262.2.2.2023
-
Status
W trakcie
-
Rodzaj zamówienia
Usługi
-
Tryb zamówienia
Inne
-
Termin składania ofert
-
Termin otwarcia ofert
-
Miejsce złożenia oferty
Załączniki
-
Zapytanie o szacowanie
format: pdf, rozmiar: 363.21 KB, data dodania:
-
Załącznik nr 2_formularz cenowy
format: text, rozmiar: 7.69 KB, data dodania:
-
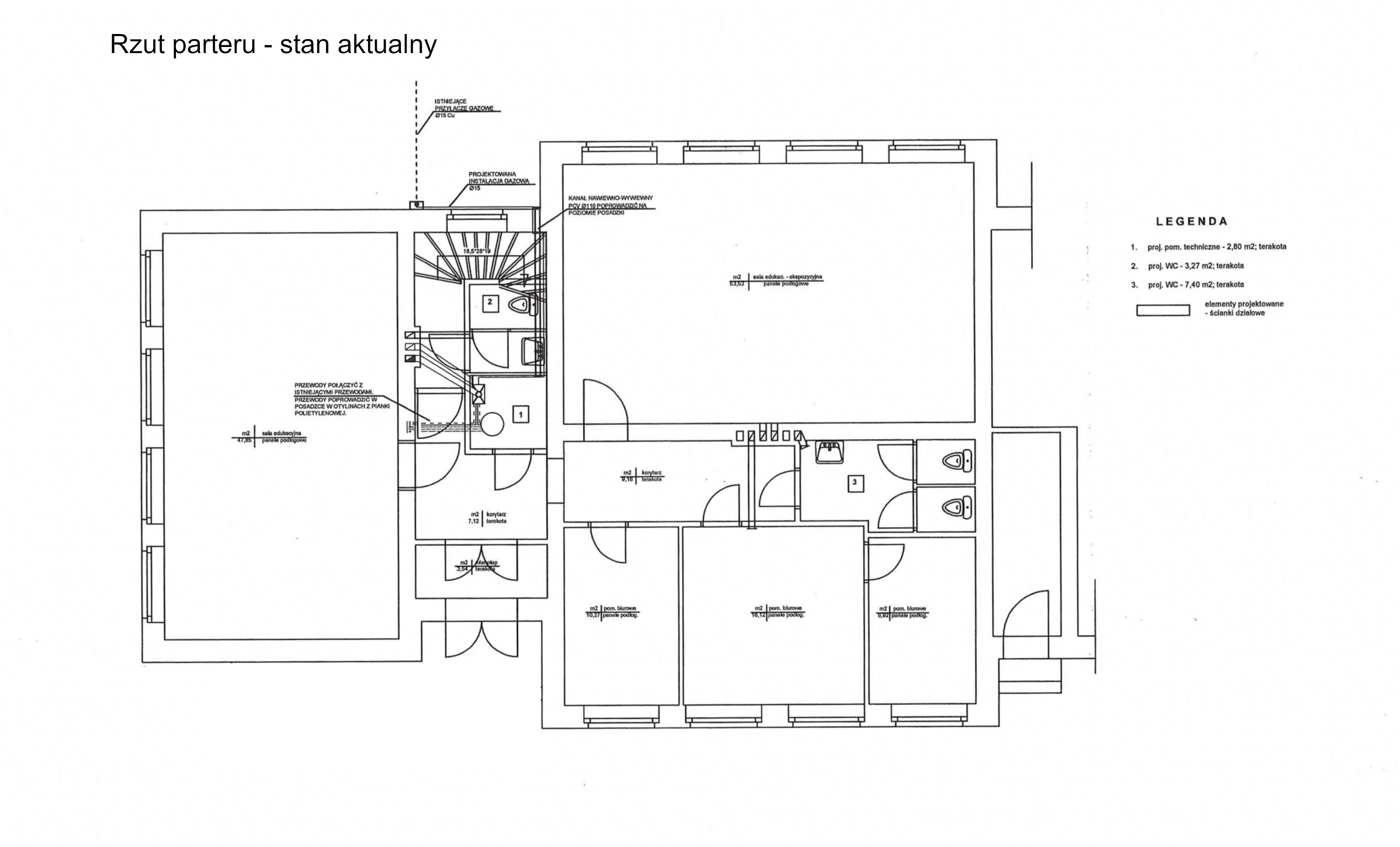
Załącznik nr 4_rzut parteru_aktualny
format: image/jpeg, rozmiar: 450.05 KB, data dodania:
-
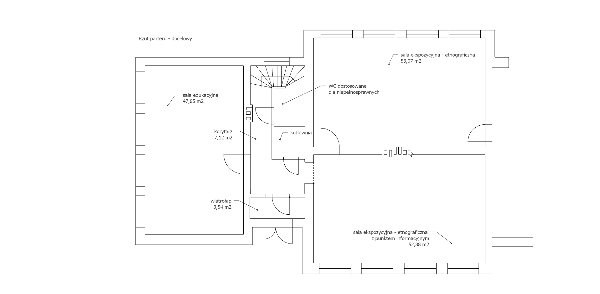
Załącznik nr 5_rzut parteru_projekt
format: image/jpeg, rozmiar: 144.49 KB, data dodania:
-
Załącznik nr 1_opis przedmiotu zamówienia
format: pdf, rozmiar: 616.4 KB, data dodania:
-
Załącznik nr 6_rzut poddasz
format: image/jpeg, rozmiar: 99.65 KB, data dodania:
-
Załącznik nr 3_Zdjęcia stan aktualny
format: pdf, rozmiar: 1.54 MB, data dodania: